600X电动控制阀由主阀、电磁导阀、针阀、球阀、微形过滤器和压力表组成水力控制接管系统。通过电磁导阀可以实现对阀门开启和关闭的遥控。加装附加装置后,可控制开启和关闭的速度。电控黄瓜视频污网站利用导阀控制阀门的开启和关闭,节省能源。可代替其它阀门大型电动装置。适用于高层建筑、生活区等供水管网系统及城市供水工程。600X电动控制阀是一种以电磁阀为向导阀的水力操作式阀门。常用于给排水及工业系统中的自动控制,控制反应准确快速,根据电信号遥控开启和关闭管路系统,实现远程操作。
600X水力电动控制阀工作原理:
当阀门从阀前端给水时,水流流过针阀进入主阀控制室,当电磁导阀打开时,控制室内的水经电磁导阀、球阀流出。球阀开度大于针阀开度,主阀控制室内压力很低,主阀处于全开状态。当电磁导阀关闭时,主阀控制室的水不能流出,控制室升压,推动膜片关闭主阀。
600X水力电动控制阀零部件材料:
零件名称 | 零件材料 |
阀体 阀盖 | WCB |
阀座 阀盘 | 铜合金 |
密封圈 O型圈 | 丁腈橡胶 |
阀杆 | 2Cr13 |
弹簧 | 50CrVA |
针型阀 | 铜合金 |
球阀 | 铜合金 |
电磁导阀 | 不锈钢 |
微型过滤器 | 不锈钢 |
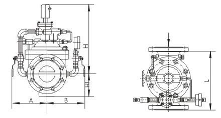
600X水力电动控制阀连接尺寸:

公称通径DN | L | H | H1 | A | |
50 | 250 | 335 | 90 | 170 | 170 |
65 | 280 | 345 | 98 | 180 | 180 |
80 | 310 | 355 | 110 | 190 | 190 |
100 | 350 | 365 | 120 | 200 | 200 |
125 | 400 | 445 | 145 | 215 | 215 |
150 | 450 | 460 | 155 | 230 | 230 |
200 | 550 | 505 | 190 | 255 | 255 |
250 | 650 | 550 | 250 | 295 | 295 |
300 | 800 | 710 | 290 | 325 | 325 |
350 | 900 | 725 | 330 | 380 | 380 |
400 | 1000 | 760 | 360 | 415 | 415 |
450 | 1000 | 810 | 445 | 435 | 435 |
500 | 1100 | 865 | 495 | 460 | 460 |
600 | 1100 | 935 | 550 | 520 | 520 |
700 | 1450 | 1000 | 605 | 570 | 570 |
800 | 1560 | 1100 | 730 | 620 | 620 |
900 | 1800 | 1205 | 800 | 670 | 670 |
600X水力电动控制阀安装示意图: 